(Sold Subject To Contract)

Property Features

  • NO ONWARD CHAIN
  • Extended Semi-Detached
  • Spacious Entrance Hall
  • Good Sized Lounge
  • Dining Room & Fitted Kitchen
  • Three Bedrooms & Shower Room
  • Garden to Front, Side & Rear
  • Large Driveway & Garage
Print
EPC

Brief Description

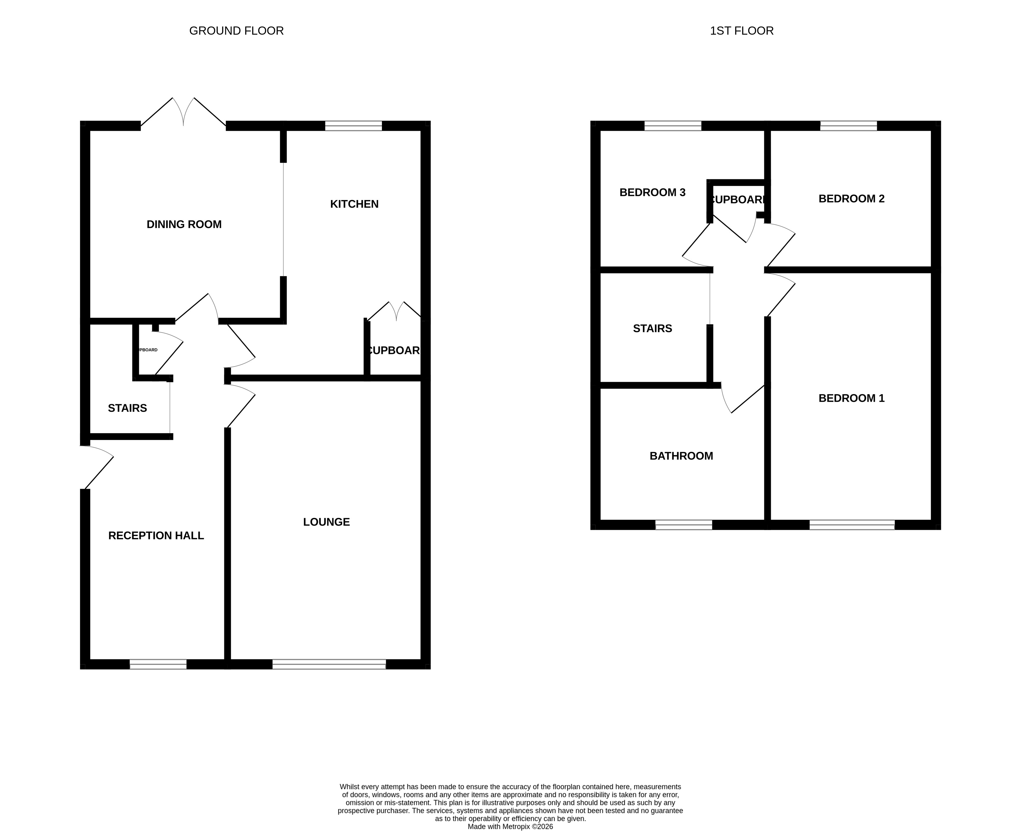
Located at the head of this popular street in Altofts, having good size gardens to three sides, is this spacious three bedroom extended Semi-Detached family home, having gas central heating and UPVC double glazing the property comprises: spacious entrance hall, good size lounge, dining room, fitted kitchen, staircase to first floor landing having three bedrooms and a shower room. To the front of the property there is a garden, driveway to the side providing ample off street parking and leading to a single garage, with up and over door, side garden and garden to rear. Conveniently located only a short distance away from Normanton Town Centre and its wide range of amenities, whilst the motorway networks can quickly be reached.

Main Description

INTERIOR A UPVC entrance door leads into:

HALLWAY 19' 1" x 8' 8" (5.82m x 2.64m) A good size room with double glazed window, two central heating radiators, laminate wood flooring, store cupboard with combination boiler and under stairs store cupboard.

LOUNGE 16' 2" x 12' 0" (4.93m x 3.66m) A good size room, having bay window overlooking front garden and letting in plenty of natural light, inset living flame gas fire with back, hearth and brick built surround with mantle, central heating radiator and TV point.

DINING ROOM 13' 3" x 11' 9" (4.04m x 3.58m) A nice size room, having French doors over looking rear garden with pleasant aspect, laminate wood flooring, central heating radiator and feature arch.

KITCHEN 15' 8" x 9' 0" (4.78m x 2.74m) Being fully tiled and having a comprehensive range of white units to high and low-level with contrasting work surface, incorporating sink and drainer with mixer tap, space for electric cooker, space and plumbing for automatic washing machine and tumble dryer, integrated fridge/freezer, central heating radiator, double glazed window with pleasant aspect over looking rear garden.

STAIR CASE TO FIRST FLOOR LANDING Double glazed window and access to roof space.

BEDROOM ONE 14' 2" x 9' 11" (4.32m x 3.02m) Having double glazed window to front, central heating radiator, laminate wood flooring and fitted wardrobes to one wall.

BEDROOM TWO 11' 11" x 8' 8" (3.63m x 2.64m) Having double glazed window with pleasant aspect and open views over looking rear garden, built-in store cupboard and laminate wood flooring.

BEDROOM THREE 8' 8" x 5' 10" (2.64m x 1.78m) Having double glazed window, over looking rear garden, central heating radiator and built-in wardrobes.

SHOWER ROOM 8' 7" x 7' 9" (2.62m x 2.36m) Being fully tiled and comprising: low flush WC with concealed cistern, inset hand basin with storage units beneath, shower cubicle with electric shower, fully tiled with ceramic tiling border, tiled floor, chrome towel radiator, window with obscured glass and extractor.

EXTERIOR The property stands on this good size plot, having low maintenance garden to front, paved area and planted beds, tarmac driveway with ample parking leads to a single attached garage with up and over door, having electric power and light, gated access leads to side garden, having concrete patio area, wrought iron gates leads onto stone patio with lawned garden, with raised beds and planters, ornamental pond and views over neighbouring fields.

BOUNDARIES The boundaries and ownerships have not been checked on the Title Deeds for any discrepancies or rights of way. All prospective purchasers should make their own enquiries before proceeding to exchange of contracts.

FLOOR PLANS These floor plans are intended as a rough guide only and are not intended as an exact representation and should not be scaled. We can not confirm the accuracy of these plans.

MEASUREMENTS There is a six inch measurement tolerance or metric equivalent. All measurements are for general guidance purposes only and are approximate. Due to variations and tolerances in metric and imperial measurements, measurements contained in these particulars must not be relied upon for ordering carpets, furniture etc.

NOTES None of the installed services and equipment have been tested and no warranties of any kind can be given accordingly, prospective purchasers should bear this in mind when formulating their offers. The sellers do not include in the sale any carpets, light fittings, floor covering, curtains, blinds, furnishing, electrical/gas appliances (whether connected or not) or any other fixtures and fittings unless expressly mentioned in these particulars.

Viewing

Please contact us on 01924 890320 if you wish to arrange a viewing appointment for this property, or require further information.

Energy Performance Certificate
Click here to view the Energy Efficiency Rating and Environmental Impact Rating for this property.


Disclaimer

Chris North Properties Ltd endeavour to maintain accurate depictions of properties in Virtual Tours, Floor Plans and descriptions, however, these are intended only as a guide and purchasers must satisfy themselves by personal inspection.

Find Out How Much Your Home's Worth

Get a free valuation
IE8 Alert! Cookie Alert!

To get the best possible experience using our website we recommend you upgrade to a modern web browser. More info