(Sold Subject To Contract)

Property Features

  • NO ONWARD CHAIN
  • Semi-Detached Dormer Bungalow
  • GCH & UPVC D/G
  • Entrance Hallway
  • Modern Fitted Kitchen
  • Lounge & Dining Room
  • Two Double Bedrooms
  • Beautiful House Bathroom
  • Gardens to Front & Rear
  • Driveway & Detached Garage
Print
EPC

Brief Description

We are pleased to offer to the market with NO ONWARD CHAIN, this spacious and well presented two double bedroom Semi-Detached dormer bungalow, located in the ever popular village of Altofts, having gas central heating and UPVC double glazing the well appointed accommodation comprises; entrance hallway, modern fitted kitchen, lounge, dining room, staircase to first floor landing having two double bedrooms and beautifully appointed house bathroom, gardens to front with driveway to side providing off street parking and leading to a single detached garage, enclosed low maintenance garden to rear. The property is conveniently located having a good range of local shops and amenities close by, whilst the motorway networks can quickly be reached.

Main Description

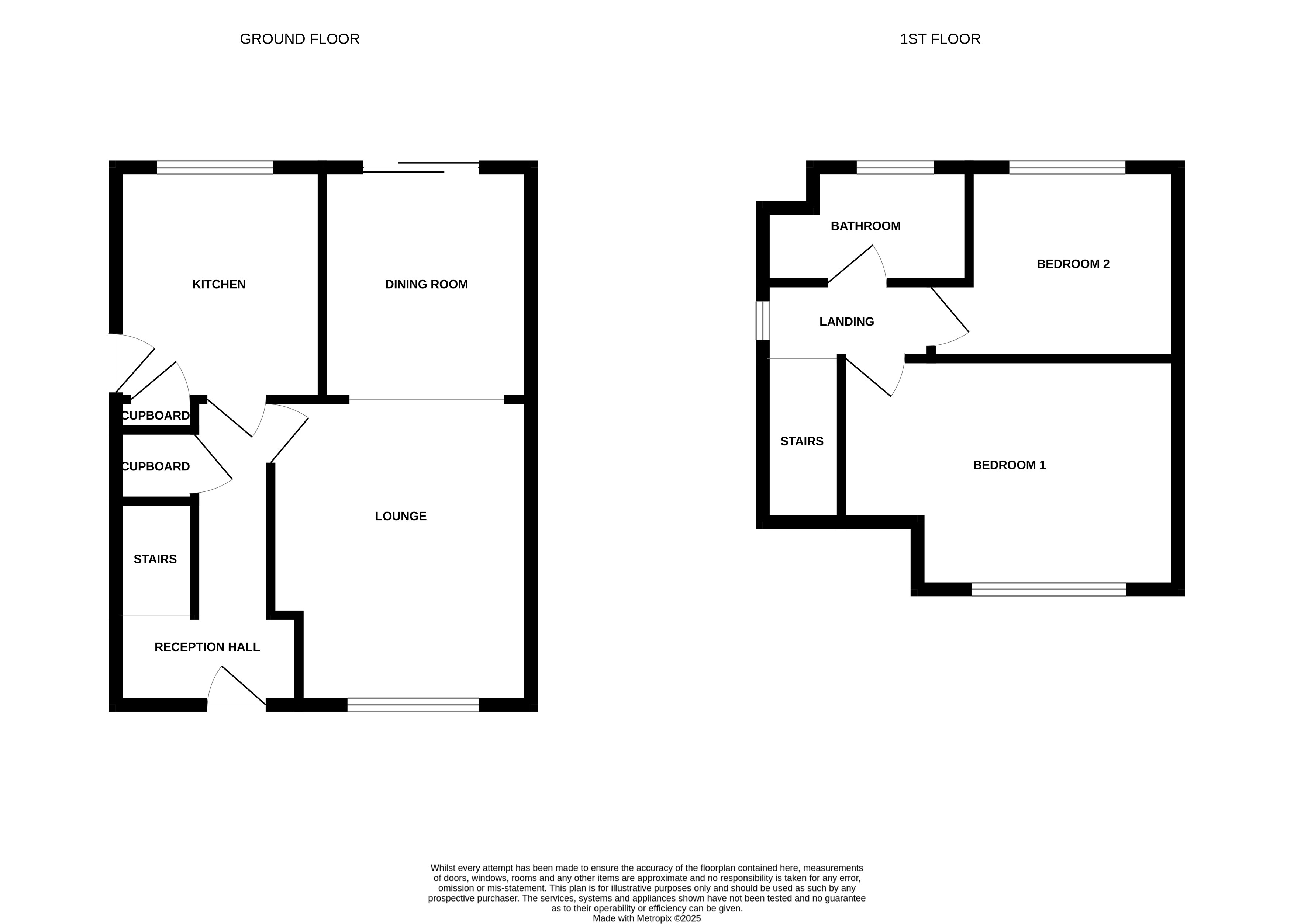
INTERIOR A UPVC front entrance door with glazed side panel leads into:

ENTRANCE HALLWAY Having solid wood flooring, central heating radiator and under stairs store cupboard housing combination condensing boiler.

LOUNGE 9' 10" x 11' 7" (3m x 3.53m) A nice size room, having double glazed window letting in plenty of natural light, inset electric fire with modern limestone back, hearth and surround, central heating radiator, TV & telephone point and archway to:

DINING ROOM 9' 11" x 9' 1" (3.02m x 2.77m) Having central heating radiator and patio doors with pleasant aspect and to rear garden.

KITCHEN 9' 10" x 8' 10" (3m x 2.69m) Having a comprehensive range of white country style units to high and low-level, with contrasting grey work surface, incorporating sink and drainer with mixer tap, tiled splash backs, built-in electric oven, four ring ceramic hob with extractor above, space and plumbing for automatic washing machine, space for fridge/freezer, solid wood flooring, double glazed window overlooking rear garden, useful store cupboard and side entrance door.

STAIR CASE TO FIRST FLOOR LANDING Having double glazed window and access to roof space.

BEDROOM ONE 15' 8" x 10' 2" (4.78m x 3.1m) A front facing room having double glazed window letting in plenty of natural light and a central heating radiator.

BEDROOM TWO 8' 11" x 8' 3" (2.72m x 2.51m) Having double glazed window overlooking rear garden and a central heating radiator.

BATHROOM 9' 2" x 5' 5" (2.79m x 1.65m) Being fully tiled with mosaic boarder, having a white three-piece suite comprising; low flush WC, hand basin with mixer tap, panel bath with mixer tap and electric shower over, towel radiator and window with obscure glass.

EXTERIOR To the front of the property there is a lawn garden with planted beds, brick paved driveway with ample off street parking leading to a single detached garage with up and over, door whilst to the rear there is an enclosed paved garden.


BOUNDARIES The boundaries and ownerships have not been checked on the Title Deeds for any discrepancies or rights of way. All prospective purchasers should make their own enquiries before proceeding to exchange of contracts.

FLOOR PLANS These floor plans are intended as a rough guide only and are not intended as an exact representation and should not be scaled. We can not confirm the accuracy of these plans.

MEASUREMENTS There is a six inch measurement tolerance or metric equivalent. All measurements are for general guidance purposes only and are approximate. Due to variations and tolerances in metric and imperial measurements, measurements contained in these particulars must not be relied upon for ordering carpets, furniture etc.

NOTES None of the installed services and equipment have been tested and no warranties of any kind can be given accordingly, prospective purchasers should bear this in mind when formulating their offers. The sellers do not include in the sale any carpets, light fittings, floor covering, curtains, blinds, furnishing, electrical/gas appliances (whether connected or not) or any other fixtures and fittings unless expressly mentioned in these particulars.

Viewing

Please contact us on 01924 890320 if you wish to arrange a viewing appointment for this property, or require further information.

Energy Performance Certificate
Click here to view the Energy Efficiency Rating and Environmental Impact Rating for this property.


Disclaimer

Chris North Properties Ltd endeavour to maintain accurate depictions of properties in Virtual Tours, Floor Plans and descriptions, however, these are intended only as a guide and purchasers must satisfy themselves by personal inspection.

Find Out How Much Your Home's Worth

Get a free valuation
IE8 Alert! Cookie Alert!

To get the best possible experience using our website we recommend you upgrade to a modern web browser. More info