Property Features

  • Semi-Detached Dormer Bungalow
  • Spacious Reception Hall
  • Lounge & Fitted Kitchen
  • Dining Room/Bedroom 3
  • Two Further Bedrooms
  • House Bathroom
  • Gardens to Front & Rear
  • Driveway & Garage
Print

Brief Description

We are pleased to offer to the market, this spacious three-bedroom Semi-Detached Dormer Bungalow, located on this popular road in the heart of Altofts, having gas central heating and UPVC double glazing the property comprises: spacious reception hall, good size lounge, fitted kitchen, dining room/bedroom three, bedroom two, staircase to first floor landing having bedroom one and house bathroom. A well maintained garden to the front, a driveway to side leading to single garage, enclosed gardens to rear. Having a good range of local shops, schools and amenities close by, whilst the motorway network can quickly be reached.

Main Description

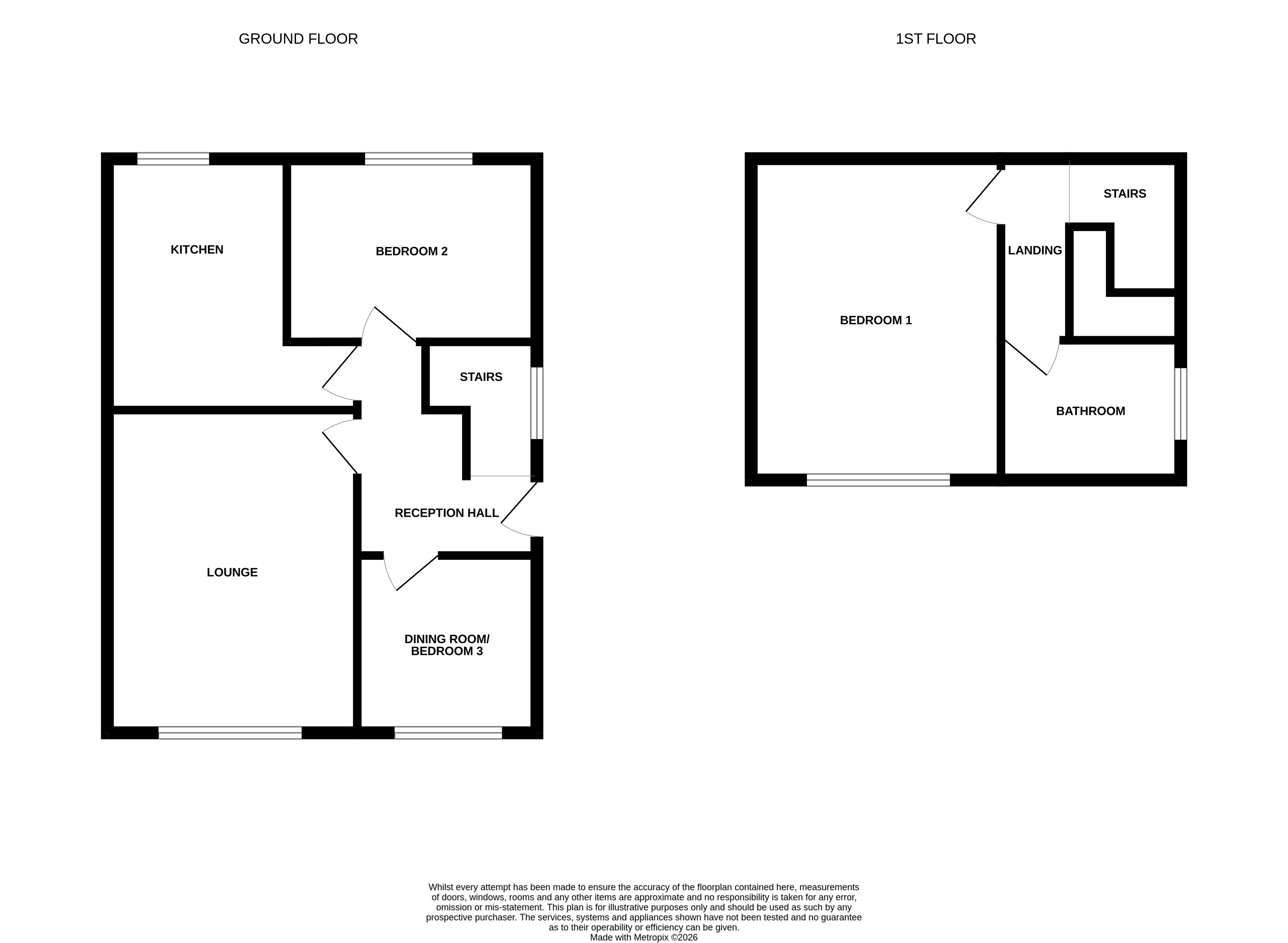
INTERIOR A UPVC side entrance door leads into:

HALLWAY Having central heating radiator, under stairs store cupboard and double glazed window.

LOUNGE 15' 9" x 12' 2" (4.8m x 3.71m) A nice size room having double glazed window letting in plenty of natural light, gas fire with marble back and hearth with surround, TV point, telephone point and central heating radiator.

KITCHEN 12' 10" x 9' 0" (3.91m x 2.74m) Having a comprehensive range of solid wood fronted units to high and low-level with contrasting work surface, incorporating sink and drainer with mixer tap tiled splash backs, built-in electric double oven, four ring ceramic hob with extractor above, integrated fridge/freezer, space and plumbing for automatic washing machine and tumble dryer, space for table and chairs, double glazed window overlooking rear garden, central heating radiator and rear access door.

DINING ROOM/BEDROOM THREE 8' 6" x 8' 4" (2.59m x 2.54m) having double glazed window and central heating radiator.

BEDROOM TWO 11' 7" x 8' 6" (3.53m x 2.59m) Having double glazed window over looking rear garden, laminate wood flooring and central heating radiator.

STAIR CASE TO FIRST FLOOR LANDING

BEDROOM ONE 14' 0" x 10' 3" (4.27m x 3.12m) Having comprehensive range of fitted wardrobes to one wall, central heating radiator, double glazed window and eves storage.

BATHROOM 8' 5" x 6' 7" (2.57m x 2.01m) Being fully tiled and having a white three-piece suite comprising: low flush WC, pedestal hand basin with mixer tap, panel bath with mixer tap and shower attachment, tiled floor, window with obscured glass, central heating radiator and airing cupboard housing hot water cylinder.

EXTERIOR Standing on this pleasant road, having lawn garden to front with planted beds, tarmac driveway provides ample off street parking and leads to a single detached garage with up and over door, there is an enclosed garden to rear, having lawn area, pebbled seating area with planted beds and mature shrubs.

BOUNDARIES The boundaries and ownerships have not been checked on the Title Deeds for any discrepancies or rights of way. All prospective purchasers should make their own enquiries before proceeding to exchange of contracts.

FLOOR PLANS These floor plans are intended as a rough guide only and are not intended as an exact representation and should not be scaled. We can not confirm the accuracy of these plans.

MEASUREMENTS There is a six inch measurement tolerance or metric equivalent. All measurements are for general guidance purposes only and are approximate. Due to variations and tolerances in metric and imperial measurements, measurements contained in these particulars must not be relied upon for ordering carpets, furniture etc.

NOTES None of the installed services and equipment have been tested and no warranties of any kind can be given accordingly, prospective purchasers should bear this in mind when formulating their offers. The sellers do not include in the sale any carpets, light fittings, floor covering, curtains, blinds, furnishing, electrical/gas appliances (whether connected or not) or any other fixtures and fittings unless expressly mentioned in these particulars.

Viewing

Please contact us on 01924 890320 if you wish to arrange a viewing appointment for this property, or require further information.

Disclaimer

Chris North Properties Ltd endeavour to maintain accurate depictions of properties in Virtual Tours, Floor Plans and descriptions, however, these are intended only as a guide and purchasers must satisfy themselves by personal inspection.

Find Out How Much Your Home's Worth

Get a free valuation
IE8 Alert! Cookie Alert!

To get the best possible experience using our website we recommend you upgrade to a modern web browser. More info