(Sold Subject To Contract)

Property Features

  • NO UPWARD CHAIN
  • Semi-Detached Property
  • Some Modernisation Required
  • Hallway & Spacious Lounge
  • Good Sized Dining Kitchen
  • Ground Floor Bathroom
  • Three bedrooms & W.C.
  • Front & Rear Gardens
  • Driveway & Garage
Print
EPC

Brief Description

Offered to the market with No Onward Chain and in need of some modernisation and redecoration, is this good size three bedroom Semi-Detached family home, located in the ever popular village of Hall Green, having gas central heating and double glazing the property comprises; hallway, spacious lounge, good size dining kitchen, bathroom, staircase to first floor landing having three bedrooms and W.C. having gardens to front and rear with shared drive and garage.

Main Description

INTERIOR A UPVC front entrance door leads into:

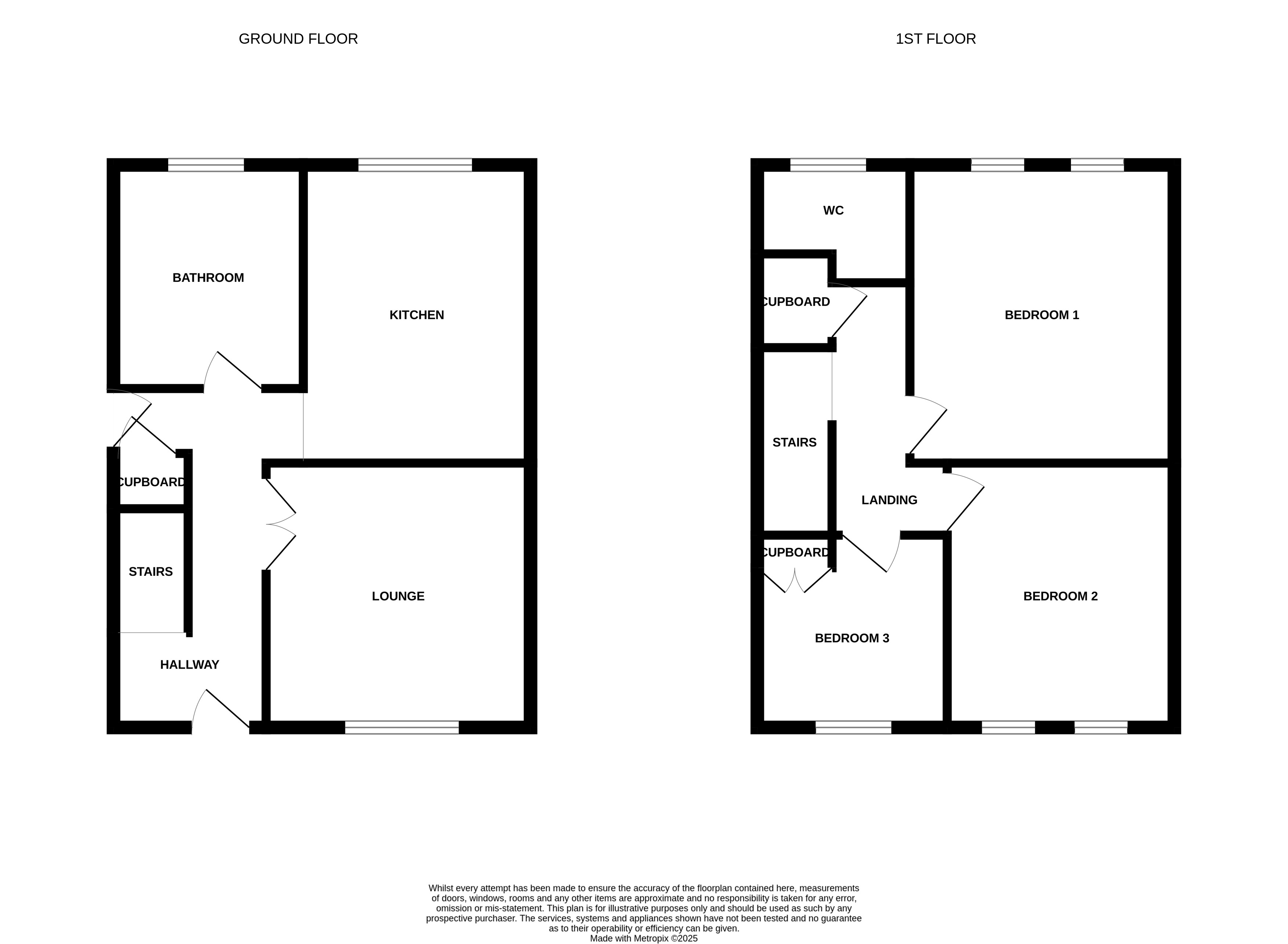
HALLWAY


LOUNGE 13' 0" x 11' 0" (3.96m x 3.35m) Having inset living flame gas fire with glass trim with tiled back and hearth with mahogany surround, double glazed window, central heating radiator and TV point.

KITCHEN 13' 2" x 10' 11" (4.01m x 3.33m) Having wall mounted gas fire with back boiler, oak fronted units to high and low-level with contrasting work surface, incorporating one a half bowl sink and drainer with mixer tap, tiled splash backs, built-in electric oven, four ring gas hob with extractor above, central heating radiator, double glazed window overlooking rear garden, useful under stairs store cupboard and stable side access door.

BATHROOM 9' 4" x 7' 10" (2.84m x 2.39m) Having three-piece suite comprising; low flush WC, pedestal hand basin, bath, tiled splash backs, two double glazed windows and central heating radiator.

STAIR CASE TO FIRST FLOOR LANDING Having access to roof space, double glazed window and store cupboard.

BEDROOM ONE 13' 1" x 10' 11" (3.99m x 3.33m) Having two double glazed windows over looking rear garden, central heating radiator and airing cupboard housing hot water cylinder.

BEDROOM TWO 11' 0" x 9' 4" (3.35m x 2.84m) Having fitted wardrobes, two double glazed window and central heating radiator.

BEDROOM THREE 8' 7" x 7' 4" (2.62m x 2.24m) Having fitted wardrobes, central heating radiator and double glazed window.

WC Having low flush W.C, hand basin with storage beneath, tiled splash backs, double glazed window and central heating radiator.

EXTERIOR The property stands on this popular road, having lawned garden to front with planted beds, shared tarmac drive with right of access for neighbouring property which leads to a single Garage with up and over door, whilst to the rear is an enclosed good size lawned garden screened by privet hedges.


The boundaries and ownerships have not been checked on the Title Deeds for any discrepancies or rights of way. All prospective purchasers should make their own enquiries before proceeding to exchange of contracts.

FLOOR PLANS These floor plans are intended as a rough guide only and are not intended as an exact representation and should not be scaled. We can not confirm the accuracy of these plans.

MEASUREMENTS There is a six inch measurement tolerance or metric equivalent. All measurements are for general guidance purposes only and are approximate. Due to variations and tolerances in metric and imperial measurements, measurements contained in these particulars must not be relied upon for ordering carpets, furniture etc.

NOTES None of the installed services and equipment have been tested and no warranties of any kind can be given accordingly, prospective purchasers should bear this in mind when formulating their offers. The sellers do not include in the sale any carpets, light fittings, floor covering, curtains, blinds, furnishing, electrical/gas appliances (whether connected or not) or any other fixtures and fittings unless expressly mentioned in these particulars.

Viewing

Please contact us on 01924 890320 if you wish to arrange a viewing appointment for this property, or require further information.

Energy Performance Certificate
Click here to view the Energy Efficiency Rating and Environmental Impact Rating for this property.


Disclaimer

Chris North Properties Ltd endeavour to maintain accurate depictions of properties in Virtual Tours, Floor Plans and descriptions, however, these are intended only as a guide and purchasers must satisfy themselves by personal inspection.

Find Out How Much Your Home's Worth

Get a free valuation
IE8 Alert! Cookie Alert!

To get the best possible experience using our website we recommend you upgrade to a modern web browser. More info