(Sold Subject To Contract)

Property Features

  • No Onward Chain
  • Semi-Detached Property
  • Entrance Hall
  • Spacious Lounge
  • Modern Fitted Kitchen
  • Ground Floor Bathroom
  • Master Bedroom with En-suite
  • Two Further Bedrooms
  • Gardens to Front & Rear
  • Driveway
Print
EPC

Brief Description

Offered to the market with No Onward Chain, is the spacious is this well presented three bedroom Semi-Detached family home, having been recently decorated and carpeted and having gas central heating and UPVC double glazing the property comprises; entrance hallway, spacious lounge, modern fitted kitchen, inner hall, bathroom, staircase to first floor landing, bedroom one with en-suite shower room, two further bedrooms. Having good size gardens to both front and rear with a driveway providing off street parking. Conveniently located only a short distance away from Normanton Town Centre and its wide range of amenities, whilst the motorway networks can quickly be reached.

Main Description

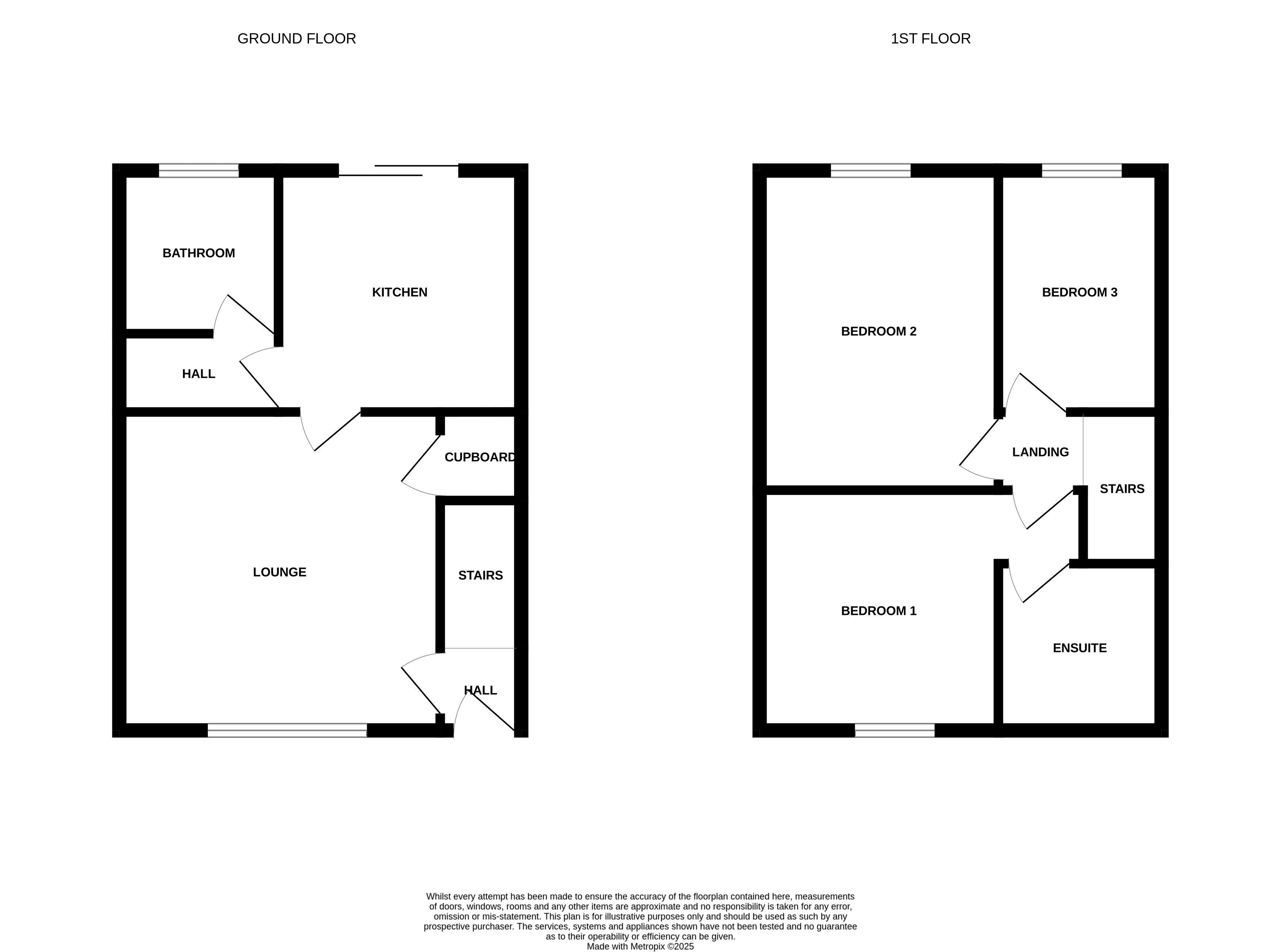
INTERIOR A UPVC front entrance door leads into:

HALLWAY Having central heating radiator.

LOUNGE 13' 7" x 13' 10" (4.14m x 4.22m) Having electric fire with brass trim, modern surround, back and hearth, central heating radiator, double glazed window, under stairs store cupboard and telephone point.

KITCHEN 9' 3" x 10' 8" (2.82m x 3.25m) Having a comprehensive range of white high-gloss units to high and low-level with steel handles, contrasting work surface, sink and drainer with mixer tap, peninsular breakfast bar, built-in double over, ceramic hob with extractor above, brick set tiled splash backs, combination condensing boiler and patio doors to rear garden.

INNER HALLWAY


BATHROOM 5' 6" x 5' 11" (1.68m x 1.8m) Having white three-piece suite comprising; low flush W.C, pedestal hand basin with mixer tap, panel bath with tiled splash backs, window with obscured glass and central heating radiator.

STAIR CASE TO FIRST FLOOR LANDING Having double glazed window and access to roof space.

BEDROOM ONE 16' 2.82" x 10' 4" (4.93m x 3.15m) Central heating radiator and double glazed window.

EN-SUITE SHOWER ROOM 6' 0" x 6' 7" (1.83m x 2.01m) Having a white three-piece suite comprising; low flush W.C, sink unit with storage beneath, tiled shower cubicle with mains shower and an extractor fan.

BEDROOM TWO 12' 6" x 9' 2" (3.81m x 2.79m) Central heating radiator and a double glazed window overlooking rear garden.

BEDROOM THREE 7' 3" x 9' 3" (2.21m x 2.82m) Central heating radiator and a double glazed window overlooking rear garden.

EXTERIOR To the front of the property there is a lawned garden with planted beds, a concrete driveway provides ample off street parking and leads to rear garden, having a concrete patio, lawn garden, greenhouses and sheds.



BOUNDARIES The boundaries and ownerships have not been checked on the Title Deeds for any discrepancies or rights of way. All prospective purchasers should make their own enquiries before proceeding to exchange of contracts.

FLOOR PLANS These floor plans are intended as a rough guide only and are not intended as an exact representation and should not be scaled. We can not confirm the accuracy of these plans.

MEASUREMENTS There is a six inch measurement tolerance or metric equivalent. All measurements are for general guidance purposes only and are approximate. Due to variations and tolerances in metric and imperial measurements, measurements contained in these particulars must not be relied upon for ordering carpets, furniture etc.

NOTES None of the installed services and equipment have been tested and no warranties of any kind can be given accordingly, prospective purchasers should bear this in mind when formulating their offers. The sellers do not include in the sale any carpets, light fittings, floor covering, curtains, blinds, furnishing, electrical/gas appliances (whether connected or not) or any other fixtures and fittings unless expressly mentioned in these particulars.

Viewing

Please contact us on 01924 890320 if you wish to arrange a viewing appointment for this property, or require further information.

Energy Performance Certificate
Click here to view the Energy Efficiency Rating and Environmental Impact Rating for this property.


Disclaimer

Chris North Properties Ltd endeavour to maintain accurate depictions of properties in Virtual Tours, Floor Plans and descriptions, however, these are intended only as a guide and purchasers must satisfy themselves by personal inspection.

Find Out How Much Your Home's Worth

Get a free valuation
IE8 Alert! Cookie Alert!

To get the best possible experience using our website we recommend you upgrade to a modern web browser. More info